|
|
L'actual nom de carrer de les Olles procedeix del de la plaça de les Olles, denominació que l'espai encara tenia a finals del segle XIX i principis del XX, a l'extrem sud de l'actual carrer de les Peixateries Velles, que sent més ample que l'altre cap, tenia certa forma de plaça. Hi havia el mercat de la terrissa, de producció abundant a Girona, que es fabricava al carrer de Canaders, situat a un costat de l'actual plaça de Pompeu Fabra.
En els forns de Girona es produia una ceràmica utilitària i artística excel·lent, fins i tot del tipus de reflexes metàl·lics, tan apreciada. La terrissa i la ceràmica que sortia defectuosa del forn, era venuda a baix preu i els mestres de cases l'empraven per a omplir les voltes, fent de gruix entre aquestes i l'enrejolat del damunt, estalviant així molt de pes, i reforçant-ne la resistència. Probablement al mercat de les olles de Girona hi venien també la seva producció els forns de Quart i de Fornells de la Selva. En unes ordenacions del mostassaf, l'encarregat de la tasca de policia de mercats, del 1500, es documenta que l'indret de les Olles era l'escenari dels negocis lligats a la compra i venda de la terrissa.
El carrer de les Olles. Al fons, la Rambla de la Llibertat - (Ampliar)
El carrer de les Olles té un tram cobert, el que connecta sota els porxos de la Rambla de la Llibertat, i un altre de descobert que arriba fins al carrer dels Mercaders. A aquest carreró també s'hi pot accedir pel carrer de les Peixateries Velles.
La conversió de l'antiga plaça de les Olles en carrer s'ha de datar entre els darrers anys del segle XIX i la primeria del segle XX, durant el procés de privatització del mosaic de carrers que lligaven la Rambla de la Llibertat amb el carrer dels Mercaders. El 1889 els veïns del sector es queixaven que feia temps es va tancar el carreró que duia de la plaça de les Olles al carrer dels Mercaders, la qual cosa demostra que l'antiga ubicació d'aquest carrer diferia força del trajecte actual. En aquesta data l'historiador i polític Joaquim Botet i Sisó demanava el tancament del carreró del Cigne, que enllaçava directament la plaça de les Olles amb la Rambla de la Llibertat.
(Ampliar) - Terrissa de volta. Conjunt ceràmic trobat en una casa de la plaça del Vi. Segle XVIII-XIX. Aquestes gerres, escudelles, olles, plats, gibrells, càtirs i tupins es varen utilitzar per farcir el carcanyol, l'espai entre els arcs de'una volta. Museu d'Història de Girona
Els veïns s'hi varen oposar i es va evitar, tot i que momentàniament; per acord de l'Ajuntamet de 17 d'agost del 1918, es venia el tram ocupat pel carrer del Cigne a Joaquim Ribas i Cateura. Per tant, el tancament inicial del carreró que duia al carrer dels Mercaders, i posteriorment la privatització del que enllaçava amb la Rambla de la Llibertat devia deixar la plaça de les Olles gairebé voltada d'edificacions i amb un espai d'ús públic molt reduït. D'aquest petit espai resultant, i del que delimitava el sector de construccions veïnes, en resultà el tram que popularment s'afermà amb el nom de carrer de les Olles.
El 1910 el carrer de les Olles, ja esmentat com a carrer per la progressiva pèrdua d'espai de la tradicional plaça de les Olles, era ja delimitat, i hi s'hi troben estadans d'un cert relleu, com ara Valentí Fargnoli, remarcable fotògraf, i el seu germà Adolf, notable ebenista i orfebre. Ambdós artistes vivien en aquest carrer juntament amb els seus pares.
El carrer de les Olles des de les voltes de la Rambla de la Llibertat - (Ampliar)
El carrer de les Olles va ser, en altre temps, un espai concorregut per l'existència de les seus de dos setmanaris i d'una societat recreativa. Segons explica Josep Grahit, en el tros cobert que va vers la Rambla, en una escala actualment tapiada, es venerava una imatge de Sant Cristòfol, que en la seva festivitat era elegantment ornada i a més, se celebrava una audició de sardanes (Alberch, op. cit). Sembla que aquesta mateixa escala conduïa als locals de la societat recreativa "Las Odaliscas", que ocupà diversos locals arreu de la ciutat, i que, juntament amb el Saló Odeón de la Pujada de Sant Domènec, constituïen un capítol important de l'esbarjo gironí dels anys de canvi de segle XIX-XX.
A l'edifici que duia el número 4 del carrer hi hagué la seu del "Centro republicano radical" que hi tenia la redacció i administració del setmanari "El Radical", lerrouxista declarat, i en una altra casa, hi hagué la seu del Setmanari d'acció catòlica "El Eco de Gerona" (1923-1928), que havia estat a la plaça del Vi número 14.
(Ampliar) - Casament de Valentí Fargnoli amb Rosa Vilasseca a la festa celebrada a l'antic Cafè Cal Bisbe a la plaça de l'Església de Maçanet, el 3 de maig de 1912. Taller d'Història de Maçanet de la Selva.
Les obres d'urbanització de més relleu al carrer, varen ser el 1926 quan es va pavimentar amb llambordes, i els anys 1973-1974, quan se'l dotà d'un paviment de lloses, es condicionà per a vianants i s'enllumenà novament amb els artístics fanals característics del barri vell de la ciutat.
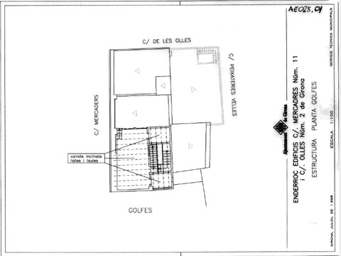
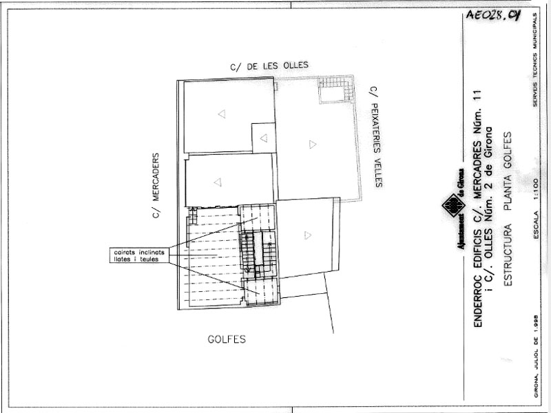
El juliol de 1997 es va iniciar l'expedient d'expropiació d'una finca, de planta baixa i quatre plantes de pis, amb una superfície total de 835 metres quadrats, situada entre el carrer dels Mercaders, Olles i carrer de les Peixateries Velles, l'enderroc de la qual va esponjar l'espai i va donar lloc a la plaça dels Mercaders. El 28/7/1998 el "Diari de Girona" publicava que "l'Ajuntament de Girona ha adjudicat en la seva darrera comissió de govern les obres d'enderrocament de dos edificis, un al número 2 del carrer de les Olles i l'altra al número 11 del Mercaders. Aquesta mesura servirà per esponjar aquesta zona del barri vell, creant espais d'ús públic. Les obres han estat adjudicades a l'empresa Construccions Fusté s.a, per un preu de quatre milions i mig de pessetes. El termini d'execució dels treballs serà de tres mesos a partir de l'agost". L'octubre de 1998 es va acabar l'enderroc i va començar la urbanització de la nova plaça.
Enderroc dels edificis del carrer Mercaders núm. 11 - carrer de les Olles núm. 2. 1998. Fons Ajuntament de Girona - (Ampliar)
El Sant Cristòfol del carrer de les Olles.
La imatge, una talla de fusta del segle XVI, representa sant Cristòfol amb el Nen Jesús a les espatlles, una peça que ocupava una de les antigues capelletes exteriors de la ciutat. El sant era venerat a Girona, en època medieval i moderna, com a patró dels viatgers.
L’escultura prové d’una casa del carrer de les Olles que al segle XIX acollia la Societat Recreativa Las Odaliscas, que tenia una capelleta amb la talla del sant. Per la festivitat de sant Cristòfol, el dia 10 de juliol, la imatge era ornamentada i al davant s’hi feien ballades de sardanes. Diverses vicissituds i un temps llarg de Guerra Civil i de postguerra van fer que fos dipositada i salvaguardada dins de la casa veïna i és d’allà d’on en va sortir el 2023, quan Margarita i Josep M. Casadevall en varen fer donació al Museu d'Història de Girona.
Segons el professor Francesc Miralpeix de la Universitat de Girona dataria de principis de segle XVI i va ser realitzada per un bon escultor. Les característiques iconogràfiques obeeixen al mateix patró simbòlic que se li atribueixen al sant, l’home fort i gegantí, que carrega el Nen Jesús a l’espatlla i que aquest aguanta, en una mà, una bola que simbolitza el món, en el sentit d’aquell qui carrega els pecats de la humanitat. També hi apareix la figura del pelegrí amb un fanal guia a Cristòfol en el camí de llum i de la Fe veritable; i encara el bastó llarg del que n’ha brollat, com diu la llegenda que va ser, una branca de palmera. Tot plegat, doncs, configura una imatge de gran interès iconogràfic i artístic, del patrimoni escultòric conservat a Girona en el context dels primers anys del segle XVI.
Bibliografia
- "El carrer de les Olles". Ramon Alberch i Fugueras. Article publicat al diari "El Punt" el 5/6/1985.
- "Indrets de Girona. Mosaic topogràfic". Jaume Marquès i Casanovas. Article publicat al diari "Los Sitios de Gerona" el 1/4/1979.
- "Els últims menestrals de Girona". Rafel Pujol. 2022. "Revista de Girona" número 330.
- "Girona en el segle XIII (1190-1285)". J. Canal, E. Canal, J.M. Nolla, J. Sagrera. 2010. Història Urbana de Girona. ISBN 84-8496-148-2.
- "Història urbana: la primera expansió meridional". J. Canal, E. Canal, J.M. Nolla, J. Sagrera. 1994. Annals de l'Institut d'Estudis Gironins. Vol. XXXIV.
-
|
Carrer de les Olles de Girona durant una nevada. 1959. Marcel Prat Prat. CRDI - Ajuntament de Girona - (Ampliar)
Primer número del setmanari 'El radical: semanario republicano afecto al Partido Radical' 26/03/1932. Biblioteca Virtual de Prensa Histórica. Ministerio de Cultura y Deporte. - (Ampliar)
Segon número del setmanari 'El Eco de Gerona: Semanario de Acción Católica' 13/01/1923. Biblioteca Virtual de Prensa Histórica. Ministerio de Cultura y Deporte. - (Ampliar)
Anunci de ball de la societat "Las Odaliscas" a la Sala Odeon durant les Fires de Sant Narcís de 1902.
Joaquim Botet i Sisó (Girona, 1846-1917). Ajuntament de Girona - (Ampliar)
El carrer de les Olles a l'encreuament amb Mercaders. Al fons, el carrer de les Ferreries Velles i la volta d'accés a la Rambla de la Llibertat. L'edifici de la dreta va ser enderrocat per obrir-hi una plaça. 1986. Juli Torres Monsó. CRDI - Ajuntament de Girona - (Ampliar)
Imatge de Sant Cristòfol. Segle XVI. Museu d'Història de Girona.
 |
|
Localització |
|
|
41º 59' 02" N
2º 49' 28" E |
|